Top 3 Mẫu Bản Vẽ Biệt Thự Hiện Đại 3 Tầng Mặt Tiền Rộng

Xu hướng xây dựng biệt thự 3 tầng hiện đang được nhiều chủ đầu tư quan tâm lựa chọn. Việc xem xét ý tưởng trước khi triển khai là việc cần thiết để có thể sở hữu được không gian sống khoa học và giàu giá trị thẩm mĩ. Được sự đồng ý của chủ đầu tư, Nhà Xinh trân trọng giới thiệu 3 mẫu bản vẽ biệt thự hiện đại 3 tầng đẹp sở hữu thiết kế hoàn chỉnh từ phương án kiến trúc đến mặt bằng công năng sử dụng.

Top 3 Mẫu Bản Vẽ Biệt Thự Hiện Đại 3 Tầng Mặt Tiền Rộng 

Gồm 3 hồ sơ được triển khai cho 3 chủ đầu tư khác nhau, phong cách chung hướng đến sự hiện đại sang trọng và tiện nghi, đặc biệt tính thẩm mĩ và công năng phải có sự hài hòa và tương đồng trong tổng thể. Thảm khảo nhé!

Mẫu bản vẽ biệt thự hiện đại 3 tầng mái thái tại Hưng Yên

ban-ve-biet-thu-3-tang-1-1
Với diện tích thiết kế là 11x18m, mẫu biệt thự hiện đại 3 tầng này của anh Đức tọa lạc tại Hưng Yên nằm ngay vị trí thuận tiện cho việc đi lại và vận chuyển nguyên vật tư. Yêu cầu thiết kế mặt tiền bắt mắt với không gian mở rộng, đón thoáng và đón nắng. Đồng thời mặt tiền phải bền đẹp theo thời gian và không bị lỗi mốt theo xu hướng phát triển ở vài năm tiếp theo.
ban-ve-biet-thu-3-tang-1-2
Phối cảnh kiến trúc hiện đại so với kết cấu tổng quan từ tường bao cho đến ngoại thất có sự ăn khớp và hài hòa trong từng chi tiết. Sử dụng ban công bằng kính đẹp, chạy dài xuyên suốt mặt tiền và khối giật cấp tạo nên sự kết nối có tính liên kết chặt chẽ. Hệ thống cửa kính kết hợp với mặt tường ốp gạch đẹp mắt, có sự đan xen giữa tường gạch thông gió. Hệ thống cửa cổng rộng và tường rào kiên cố, tất cả giúp không gian mặt tiền của mẫu biệt thự trở nên thu hút hơn.
ban-ve-biet-thu-3-tang-1-3
Không gian sân vườn tại sân thượng ở tầng 2 chính là điểm nhấn của mẫu biệt thự đẹp hiện đại 3 tầng này. Kiểu mái chứ A với độ dốc cao kết hợp tông màu ghi xám đậm cùng với ngoại thất bắt mắt được ốp đá men tường và hệ thống lam sắt ấn tượng, trang trí chắn nắng ở tầng 1 nhằm tạo nên sự tổng hòa có sức sống lớn. Chính sự hình khối thanh thoát - kiên cố, màu sắc hiện đại, trang trí bắt mắt mà mẫu bản vẽ biệt thự hiện đại 3 tầng 11x18m này sẽ luôn nổi bật, cho dù 5 năm hay 10 năm nữa.

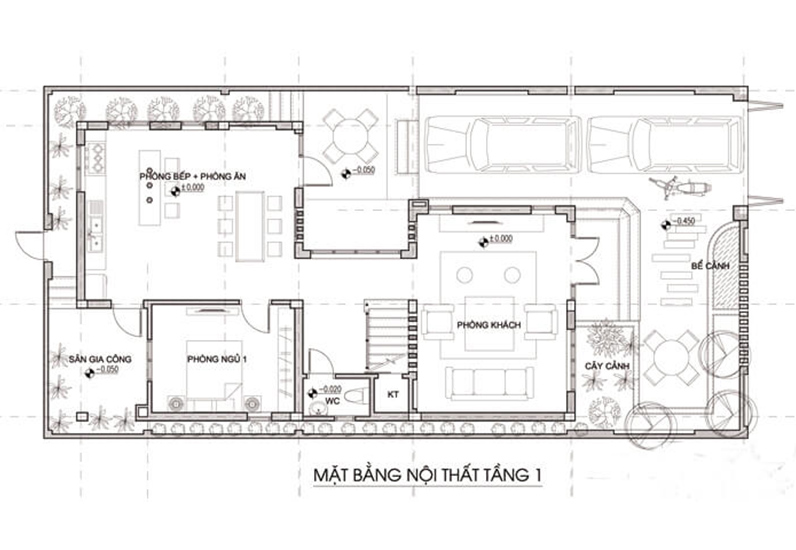
Mặt bằng công năng sử dụng tầng 1

ban-ve-biet-thu-3-tang-1-4
Không gian tầng trệt bao gồm: 1 phòng khách, 1 phòng ngủ, 1 phòng bếp -ăn. Ngoài ra còn 1 phòng WC được bố trí ngay bên dưới không gian trống của cầu thang giúp tận dụng tối đa không gian.

Mặt bằng công năng sử dụng tầng 2

ban-ve-biet-thu-3-tang-1-5
Không gian tầng 1 bao gồm: 1 phỏng ngủ master có WC khép kín và 2 phòng ngủ nhỏ hơn dùng chung WC bên ngoài. 

Mặt bằng công năng sử dụng tầng 3

ban-ve-biet-thu-3-tang-1-6
Không gian tầng 2 bao gồm: 1 phòng ngủ có WC chung bên ngoài, 1 phòng thờ có ban công rộng thoáng, 1 sân phơi và 1 phòng vui chơi

Mẫu bản vẽ biệt thự hiện đại 3 tầng mái thái tại Hải Phòng

ban-ve-biet-thu-3-tang-2-1
Mẫu biệt thự đẹp hiện đại mặt tiền 6.5m độc đáo với phối cảnh xanh và cách xử lý kiến trúc tinh tế. Gia đình là người ưa thích được kết nối với thiên nhiên một cách hài hòa. Gia chủ mong muốn kiến trúc sư có thể thông qua mong muốn của mình để truyền tải được sự kết nối này vào không gian kiến trúc của căn nhà. Tầng 3 sẽ tạo khoảng thống cho không gian rộng mở, với công năng sử dụng chung được tận dụng diện tích một cách tối đa.
ban-ve-biet-thu-3-tang-2-2
Hình khối hộp vuông trước mặt tiền với đường cắt vát chéo đem lại sự cân chỉnh hoàn hảo. Toàn bộ hệ thống ban công mặt tiền được tận dụng để trồng tiểu cảnh xanh, vừa mang đến điểm nhấn khác biệt, vừa tạo không gian xanh trong lành, thoáng mát. Hệ thống tường bao được xử lý tinh tế từ hệ thống cửa gỗ cho đến khối tường ốp đánh bóng xi măng tạo nên sự kết nối nhẹ nhàng cho mảng tường ốp khối trước mặt tiền tầng 2.Phần mái tầng 3 ốp nhựa giả gỗ cho toàn bộ phần trần, khoảng ban công rộng chạy dài theo chiều ngang giúp tận dụng trồng tiểu cảnh xanh đem lại một khoảng hở mở rộng. Phối cảnh nhận được sự yêu thích của khách hàng cũng như chủ nhân và các thành viên trong gia đình.

Mặt bằng công năng sử dụng tầng 1

ban-ve-biet-thu-3-tang-2-3
Không gian tầng trệt bao gồm: 1 phòng khách, 1 phòng ngủ, 1 phòng bếp -ăn, 1 phòng WC được bố trí ngay bên dưới cầu thang giúp tận dụng tối đa không gian.

Mặt bằng công năng sử dụng tầng 2

ban-ve-biet-thu-3-tang-2-3
Không gian tầng 1 bao gồm: 1 phỏng ngủ master có WC khép kín, 1 phòng sinh hoạt chung và 2 phòng ngủ nhỏ hơn dùng chung WC bên ngoài.

Mặt bằng công năng sử dụng tầng 3

ban-ve-biet-thu-3-tang-2-5
Không gian tầng 2 bao gồm: 1 phòng ngủ có WC khép kính bên trong, 1 phòng thờ có lối ra sân chơi, 1 sân phơi, 1 sân giặt và 1 kho chứa đồ.

Mẫu bản vẽ biệt thự hiện đại 3 tầng mái thái tại Thanh Hóa

ban-ve-biet-thu-3-tang-3-2
Nằm trên mảnh đất vuông vức, mẫu nhà mái thái dạng chữ L được chủ đầu tư chọn ngay sau buổi đầu tiên gặp gỡ và nhận được sự tư vấn tận tình của kts. Kiến trúc mái thái giật cấp ngói đỏ, độ cao đốc vừa phải, hệ lan can khung sắt nghệ thuật và hệ thống trụ cột tròn là điểm nhấn mà chủ đầu tư ưa thích và muốn hiện thực hóa ngay trong chính không gian ngôi nhà của gia đình.
ban-ve-biet-thu-3-tang-3-1
Kiến trúc chữ L tạo khoảng trống ở giữa dùng làm sân hiên, không gian mặt tiền có sự cân đối khi kts sử dụng kiểu mái chữ A có độ dốc nhẹ. Để chủ đầu tư có sự lựa chọn tốt nhất, các kts đã linh hoạt lên phối cảnh công trình với hệ thống cửa nhựa bền đẹp và cửa nhôm cho toàn bộ ngôi nhà. Sau khi xem xét, chủ nhà đã chọn mẫu cửa nhôm xingfa màu nâu sáng với hình khối cân đối, khối vòm bố trí tinh tế và cân chỉnh phía trước mang lại một cảm hứng mới mẻ cho lối kiến trúc nhà ở khi lên ý tưởng mẫu bản vẽ biệt thự hiện đại 3 tầng mái thái.

Mặt bằng công năng sử dụng tầng 1

ban-ve-biet-thu-3-tang-3-3
Không gian tầng trệt bao gồm: 1 phòng khách, 1 phòng ngủ, 1 phòng bếp -ăn, 1 gara xe. Ngoài ra còn 1 phòng WC được bố trí ngay bên dưới cầu thang giúp tận dụng không gian sử dụng.

Mặt bằng công năng sử dụng tầng 2

ban-ve-biet-thu-3-tang-3-4
Không gian tầng 1 bao gồm: 2 phỏng ngủ có WC khép kín, 1 phòng sinh hoạt chung.

Mặt bằng công năng sử dụng tầng 3

ban-ve-biet-thu-3-tang-3-5
Không gian tầng 2 bao gồm: 1 phòng thờ có lối ra sân chơi, 1 sân phơi, 1 sân giặt và 1 ban công sân thượng.

Mỗi mẫu bản vẽ biệt thự hiện đại 3 tầng có một phối cảnh kiến trúc và mặt bằng cơ cấu công năng riêng nhằm đáp ứng nhu cầu sử dụng cho nhiều gia chủ. Hãy liên hệ ngay với kiến trúc sư của Nhà Xinh, nếu các bạn mong muốn sở hữu không gian sống chất lượng, khoa học, tiết kiệm chi phí và tính thẩm mĩ cao nhất.

Xem thêm: Mẫu biệt thự cổ điển 1 trệt 3 lầu  | Ông Dũng 

nhà xinh
CÔNG TY CỔ PHẦN KIẾN TRÚC XÂY DỰNG NHÀ XINH HOTLINE : 0909 452 109 Địa Chỉ: 215 Nam Kỳ Khởi Nghĩa, Phường 7, Quận 3, HCM Website : www.nhaxinhcenter.com | www.nhaxinhsaigon.com

Bạn có thể quan tâm

}